Tài liệu biện pháp thi công – GS. Lê Kiều

10Th9 - by PHẠM BÁ QUANG - 0 - ⬇️️ Download: 0    👁️ Lượt xem: 0
Các bạn có thể tìm thấy nhiều tài liệu hay về dự toán công trình xây dựng hay trên internet hiện nay để tham khảo. Nhưng để tìm được tài liệu đầy đủ và chi tiết nữa thì bạn hãy truy cập Hồ sơ xây dựng nhé!

+ Tham gia nhóm Zalo chia sẻ tài liệu
+ Zalo hỗ trợ 0912.07.64.66 bạn cần tìm tài liệu gì nhắn tin zalo này
+ Xem thêm: Thư viện xây dựng VIP

THÔNG TIN TÀI LIỆU
★★★★★ 4.5/5

Tác giả: Sưu tầm

Định dạng: pdf / word / excel / cad…

Mã sản phẩm: HSXD61665

Link tải tài liệu:

🔐 Lấy mật khẩu tài liệu cuối bài viết.

+ Tham gia nhóm Zalo chia sẻ tài liệu
+ Zalo hỗ trợ 0912.07.64.66 bạn cần tìm tài liệu gì nhắn tin zalo này
+ Xem thêm: Thư viện xây dựng VIP

Tài liệu biện pháp thi công – GS. Lê Kiều

 

+ Tham gia nhóm Zalo chia sẻ tài liệu
+ Zalo hỗ trợ 0912.07.64.66 bạn cần tìm tài liệu gì nhắn tin zalo này
+ Xem thêm: Tổng hợp các mẫu biện pháp thi công


Tải Về


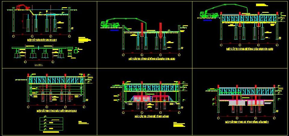
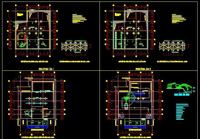
Bộ tài liệu gồm:
1. Tiến độ thi công
2. Bản vẽ an toàn lao động
3. Bản vẽ thi công cọc
4. bản vẽ thi công lõi
5. Bản vẽ thi công top down
6. Bản vẽ cốp pha
7. Bản vẽ mặt bằng đổ bê tông
8. Bản vẽ đào đất
9. Thuyết minh biện pháp thi công

Dưới đây là 1 số hình ảnh về bộ tài liệu này:

Danh sách khóa học hay mà bạn nên tham gia:

STT Danh sách khóa học Link khóa học
1 Full Kho tài liệu xây dựng 30GB CHI TIẾT TÀI LIỆU
2 Thư viện Sketchup khổng lồ 900 Gb CHI TIẾT TÀI LIỆU
3 Combo 4 khóa học Sketchup cơ bản và nâng cao CHI TIẾT TÀI LIỆU
4 Commbo tài liệu học 80 khóa học REVIT - TELKA - ETAP - SAP - BIM ... CHI TIẾT TÀI LIỆU
5 Combo khóa học Autocad cơ bản và nâng cao CHI TIẾT TÀI LIỆU
6 Combo 15 khóa học Revit từ cơ bản đến nâng cao CHI TIẾT TÀI LIỆU
7 Combo 7 khóa học Photoshop thực chiến từ nền tảng đến chuyên sâu CHI TIẾT TÀI LIỆU
8 Combo 8 khóa học tinh học văn phòng từ cơ bản đến nâng cao CHI TIẾT TÀI LIỆU
9 Khóa học Etabs - Safe CHI TIẾT TÀI LIỆU
10 Khóa học họa viên kiến trúc CHI TIẾT TÀI LIỆU
11 Tổng hợp mẫu nhà đẹp năm 2025 CHI TIẾT TÀI LIỆU
12 Phần mềm Lập và Quản lý hồ sơ chất lượng AZHOME CHI TIẾT TÀI LIỆU
13 Phần mềm Lisp Hỗ trợ thiết kế đường CHI TIẾT TÀI LIỆU
14 Phần mềm tiện ích XDAddins Excel PRO CHI TIẾT TÀI LIỆU
15 Combo 7 khóa học dự toán – dự thầu – thanh quyết toán giá 199K CHI TIẾT TÀI LIỆU
16 Full 9 khóa học thiết kế xây dựng dân dụng – Giá 199K CHI TIẾT TÀI LIỆU

🔐 Lấy mật khẩu tài liệu

Bạn có 5 giây để xem mật khẩu kể từ lúc bấm nút.

Bạn không biết Tải Tài Liệu như thế nào ? 👉 Xem Cách Tải 👉

 GÓI COMBO MẪU NHÀ ĐẸP GIÁ: 500.000đ (Gồm 10 mẫu nhà Hot nhất năm 2024 bản vẽ và phối cảnh) Bạn muốn mua thư viện bản vẽ mẫu nhà COMBO bên mình, hãy bấm vào link phía bên phải để xem trước thư viện COMBO gồm những bản vẽ gì bạn nhé. MUA 10 MẪU NHÀ HOT NHẤT NĂM 2024
GÓI DỊCH VỤ BÁN LẺ BẢN VẼ MẪU NHÀ Bạn muốn mua lẻ từng bản vẽ Mẫu Nhà click vào bên phải

MUA LẺ BẢN VẼ NHÀ

 (HỖ TRỢ MUA BẢN VẼ NHÀ ĐẸP QUA ZALO: 0904873388)

HỒ SƠ XÂY DỰNG TRÊN FACEBOOK
►Group Facebook Hồ Sơ Xây dựng : https://www.facebook.com/groups/hosoxaydung
►Group Facebook Thư viện xây dựng : https://www.facebook.com/groups/tailieunganhxd
►Group Kho bản vẽ - Thiết kế nhà đẹp : https://www.facebook.com/groups/khobanve
►Group 999 Mẫu nhà đẹp 2024 : https://www.facebook.com/groups/999nhadep 

HỒ SƠ XÂY DỰNG TRÊN ZALO

Link nhóm Zalo Hồ Sơ Xây Dựng : https://bit.ly/zalohosoxd
►Link nhóm Zalo Tài liệu Xây dựng :  https://bit.ly/zalotaileuxd
►Link nhóm Zalo Hiệp hội nhà thầu Việt Nam: https://bit.ly/zalonhathauvn
►Nhà thầu Xây dựng-Kiến trúc-Cơ Điện-Nội Thất: https://bit.ly/nhathauuytin
►Group Biện pháp thi công XDDD và CN: https://zalo.me/g/qvkyso862
►Group Biện pháp thi công Cầu đường - Thủy lợi: https://zalo.me/g/hyzzqm273
►Group Bản vẽ thiết kế XDDD-CN: https://zalo.me/g/luldrt443
►Group Bản vẽ thiết kế Cầu đường - Thủy lợi:https://zalo.me/g/ubdlaz229

Để lại một bình luận

Email của bạn sẽ không được hiển thị công khai. Các trường bắt buộc được đánh dấu *